
八王子市横川町 中古一戸建て
築年数 築11年
総階数2階建
- 横川町
-
- JR中央線 西八王子 徒歩19分
JR横浜線 八王子 バス18分横川橋公園下車 徒歩3分
- JR中央線 西八王子 徒歩19分
掲載物件1件
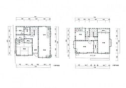
間取り図 | 階 | 価格 | 間取/面積 | ||
---|---|---|---|---|---|
![]() |
-
|
3,580.0万円 |
3SLDK
95.58m2 |
||