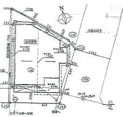
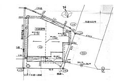
中古戸建 上溝1丁目6期
築年数 築2年
総階数2階建
- 上溝1丁目
-
- JR相模線 上溝 徒歩23分
JR相模線 上溝 バス6分作の口下車 徒歩3分
- JR相模線 上溝 徒歩23分
掲載物件2件
| 間取り図 | 階 | 価格 | 間取/面積 | ||
|---|---|---|---|---|---|
|
-
|
3,600.0万円 |
4LDK
104.33m2 |
||
|
-
|
3,780.0万円 |
4LDK
104.33m2 |
||




















































































































































































































































































































