中古戸建 芦原町 全3棟
築年数 築3年
総階数2階建
- 芦原町字芦原
-
- 豊橋鉄道渥美線 芦原 徒歩6分
豊橋鉄道渥美線 高師 徒歩9分
- 豊橋鉄道渥美線 芦原 徒歩6分
掲載物件2件
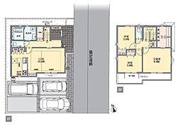
| 間取り図 | 階 | 価格 | 間取/面積 | ||
|---|---|---|---|---|---|
|
-
|
3,590.0万円 |
3LDK
97.75m2 |
||
|
-
|
3,590.0万円 |
3LDK
97.75m2 |
||











































































































































































































































































































































