蒲郡市三谷町伊与戸 戸建
築年数 築45年
総階数3階建
- 三谷町伊与戸1-1他
-
- JR東海道本線 三河三谷 徒歩11分
JR東海道本線 三河三谷 バス25分はっぴぃ前下車 徒歩1分
- JR東海道本線 三河三谷 徒歩11分
掲載物件1件
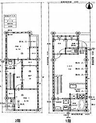
| 間取り図 | 階 | 価格 | 間取/面積 | ||
|---|---|---|---|---|---|
|
-
|
2,890.0万円 |
9LDK
418.24m2 |
||













































































































































































































































