沼津市原中古住宅
築年数 築5年
総階数2階建
- 原
-
- JR東海道本線 原 徒歩10分
掲載物件1件
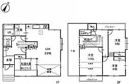
| 間取り図 | 階 | 価格 | 間取/面積 | ||
|---|---|---|---|---|---|
|
-
|
3,080.0万円 |
4LDK
92.73m2 |
||

















































































































































































































































