当社専任 さいたま市浦和区領家4丁目B号棟
築年数 築2年
総階数3階建
- 領家4丁目
-
- JR京浜東北・根岸線 北浦和 徒歩19分
JR東北本線 さいたま新都心 バス13分木崎小学校下車 徒歩2分
- JR京浜東北・根岸線 北浦和 徒歩19分
掲載物件1件
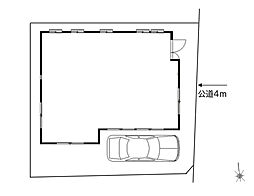
| 間取り図 | 階 | 価格 | 間取/面積 | ||
|---|---|---|---|---|---|
|
-
|
3,380.0万円 |
3LDK
98.94m2 |
||







































































































































































































































































































