中古戸建 船橋市金杉5丁目(滝不動駅)
築年数 築40年
総階数2階建
- 金杉5丁目
-
- 京成松戸線 滝不動 徒歩17分
東武野田線 馬込沢 徒歩40分
- 京成松戸線 滝不動 徒歩17分
掲載物件1件
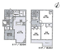
| 間取り図 | 階 | 価格 | 間取/面積 | ||
|---|---|---|---|---|---|
|
-
|
780.0万円 |
3DK
74.52m2 |
||









































































































































































