
南足柄市塚原
築年数 築41年
総階数2階建
- 塚原
-
- 伊豆箱根鉄道大雄山線 塚原 徒歩14分
伊豆箱根鉄道大雄山線 岩原 徒歩18分
- 伊豆箱根鉄道大雄山線 塚原 徒歩14分
掲載物件1件
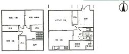
間取り図 | 階 | 価格 | 間取/面積 | ||
---|---|---|---|---|---|
![]() |
-
|
1,280.0万円 |
3SLDK
86.94m2 |
||