コーポ橋本
築年数 築38年
総階数3階建
- 橋本東山本
-
- 京阪本線 橋本 徒歩10分
京阪本線 ケーブル八幡宮口 徒歩27分
- 京阪本線 橋本 徒歩10分
掲載物件2件
| 間取り図 | 階 | 賃料/管理費等 | 敷金/礼金 | 間取/面積 | |
|---|---|---|---|---|---|
|
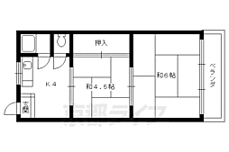
3階
|
2.4万円 0円 |
敷0.0万円 礼0.0万円 |
1K
16.2m2 |
|
|
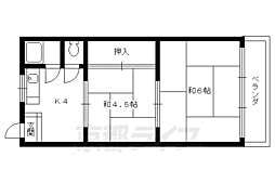
3階
|
2.4万円 0円 |
敷0.0万円 礼0.0万円 |
1R
18.6m2 |
|




















































































































































































































































































































































































































































































































































































































































































