ラ・グレイス下鴨
築年数 築10年
総階数2階建
- 下鴨西本町
-
- 京都市営烏丸線 北山 徒歩10分
京都市営烏丸線 北大路 徒歩10分
- 京都市営烏丸線 北山 徒歩10分
掲載物件4件
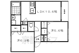
| 間取り図 | 階 | 賃料/管理費等 | 敷金/礼金 | 間取/面積 | |
|---|---|---|---|---|---|
|
1階
|
8.6万円 4,000円 |
敷5.0万円 礼15.0万円 |
1LDK
37.1m2 |
|
|
1階
|
8.6万円 4,000円 |
敷5.0万円 礼15.0万円 |
1LDK
37.17m2 |
|
|
1階
|
8.6万円 4,000円 |
敷5.0万円 礼15.0万円 |
1LDK
37.1m2 |
|
|
1階
|
8.6万円 4,000円 |
敷5.0万円 礼15.0万円 |
1LDK
37.1m2 |
|














































































































































































































































































































































































































































































































































































































































































































































































































































































































