プレジールI
築年数 築41年
総階数2階建
- 池田北町13-8
-
- 京阪本線 香里園 徒歩26分
京阪本線 寝屋川市 徒歩29分
- 京阪本線 香里園 徒歩26分
掲載物件4件
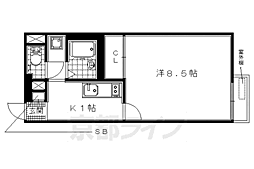
| 間取り図 | 階 | 賃料/管理費等 | 敷金/礼金 | 間取/面積 | |
|---|---|---|---|---|---|
|
2階
|
6.2万円 5,000円 |
敷0.0万円 礼6.2万円 |
1LDK
63.13m2 |
|
|
2階
|
6.2万円 5,000円 |
敷0.0万円 礼6.2万円 |
1LDK
40.01m2 |
|
|
2階
|
6.2万円 5,000円 |
敷0.0万円 礼6.2万円 |
1LDK
40.01m2 |
|
|
2階
|
6.2万円 5,000円 |
敷0.0万円 礼6.2万円 |
1LDK
40.01m2 |
|















































































































































































































































































































































































































































































































































































































































































































































































