RELUXIA両国
築年数 築5年
総階数10階建
- 緑1丁目6-4
-
- 都営大江戸線 両国 徒歩5分
JR総武線 両国 徒歩9分
- 都営大江戸線 両国 徒歩5分
掲載物件1件
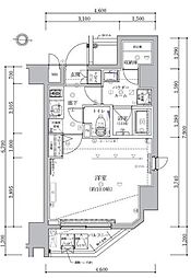
| 間取り図 | 階 | 賃料/管理費等 | 敷金/礼金 | 間取/面積 | |
|---|---|---|---|---|---|
|
6階
|
13.8万円 11,000円 |
敷0.0万円 礼13.8万円 |
1K
27.3m2 |
|















































































































































































































































































































































































































































































