メゾン ラ ペジーブル
築年数 築24年
総階数7階建
- 松原3丁目
 - 
														
- 名古屋市営名城線 東別院 徒歩13分
名鉄名古屋本線 山王 徒歩13分 
 - 名古屋市営名城線 東別院 徒歩13分
 
掲載物件2件
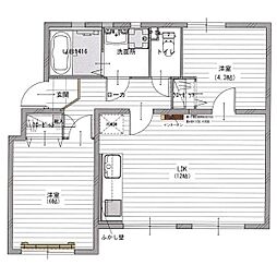
| 間取り図 | 階 | 賃料/管理費等 | 敷金/礼金 | 間取/面積 | |
|---|---|---|---|---|---|
														 
														 | 
													
														 6階 
													 | 
													
														 6.5万円 5,000円  | 
													
														 敷6.5万円 礼6.5万円  | 
													
														 
															1K
																				 
													30.71m2  | 
													|
														 
														 | 
													
														 6階 
													 | 
													
														 6.5万円 5,000円  | 
													
														 敷6.5万円 礼6.5万円  | 
													
														 
															1K
																				 
													30.71m2  | 
													|
														





















														






















											
														




























														




























														








														




























											
														


























														


























														


























														

























											




























											
														





















											
														



























											
														




























														




























														




























														

























											
														






											
														



























														




























											
														



























														




























														




























														



























