アルティメゾン博多
築年数 築10年
総階数11階建
- 東比恵3丁目6番1号
-
- 福岡市地下鉄空港線 東比恵 徒歩5分
JR鹿児島本線 博多 徒歩17分
- 福岡市地下鉄空港線 東比恵 徒歩5分
掲載物件2件
| 間取り図 | 階 | 賃料/管理費等 | 敷金/礼金 | 間取/面積 | |
|---|---|---|---|---|---|
|
4階
|
9.5万円 5,000円 |
敷0.0万円 礼19.0万円 |
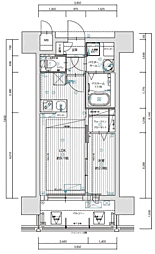
1LDK
39.2m2 |
|
|
7階
|
9.8万円 5,000円 |
敷0.0万円 礼19.6万円 |
1LDK
37.46m2 |
|



































































































































































































































































































































































































































































































































































































