Kolet与野本町08
築年数 築3年
総階数2階建
- 桜丘1丁目
 - 
														
- JR埼京線 与野本町 徒歩15分
 
 
掲載物件1件
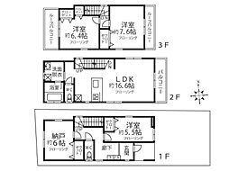
| 間取り図 | 階 | 賃料/管理費等 | 敷金/礼金 | 間取/面積 | |
|---|---|---|---|---|---|
														 
														 | 
													
														 1階 
													 | 
													
														 21.2万円 0円  | 
													
														 敷21.2万円 礼0.0万円  | 
													
														 
															4LDK
																				 
													87.78m2  | 
													|
														
















											
														















											
														



























											
														



















											























														























														




























														

























											
														


















														

























														























														

























											
														


















											
















														
















														
















											












														












														












											















