岩倉三宅町テラスハウス
築年数 築5年
総階数2階建
- 岩倉三宅町427
-
- 叡山電鉄鞍馬線 八幡前 徒歩5分
叡山電鉄叡山本線 三宅八幡 徒歩8分
- 叡山電鉄鞍馬線 八幡前 徒歩5分
掲載物件1件
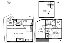
| 間取り図 | 階 | 賃料/管理費等 | 敷金/礼金 | 間取/面積 | |
|---|---|---|---|---|---|
|
1階
|
16.8万円 0円 |
敷10.0万円 礼25.0万円 |
3LDK
73.92m2 |
|














































































































































































































































































































































































































































































































































































































































