桃山町大島貸家
築年数 築46年
総階数2階建
- 桃山町大島
-
- 京阪宇治線 桃山南口 徒歩9分
JR奈良線 木幡 徒歩15分
- 京阪宇治線 桃山南口 徒歩9分
掲載物件4件
| 間取り図 | 階 | 賃料/管理費等 | 敷金/礼金 | 間取/面積 | |
|---|---|---|---|---|---|
|
-
|
9.0万円 0円 |
敷3.0万円 礼9.0万円 |
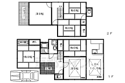
3LDK
69.79m2 |
|
|
-
|
9.0万円 0円 |
敷3.0万円 礼9.0万円 |
3LDK
69.79m2 |
|
|
-
|
9.0万円 0円 |
敷3.0万円 礼9.0万円 |
3LDK
69.79m2 |
|
|
-
|
9.0万円 0円 |
敷3.0万円 礼9.0万円 |
3LDK
69.79m2 |
|

















































































































































































































































































































































































































































































































































































































































































































































































































