日興パレス池袋
築年数 築45年
総階数9階建
- 東池袋2丁目63-5
-
- JR山手線 池袋 徒歩7分
東武東上線 北池袋 徒歩12分
- JR山手線 池袋 徒歩7分
掲載物件1件
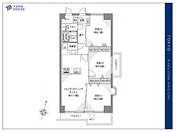
| 間取り図 | 階 | 価格 | 間取/面積 | ||
|---|---|---|---|---|---|
|
4階
|
2,980.0万円 |
1R
35.6m2 |
||















































































































































































































































































































































































































































































































































































































































































































































