 
											浅間町ハイツ
築年数 築46年
総階数4階建
- 浅間町2丁目
- 
														- JR埼京線 大宮 徒歩18分
 JR京浜東北・根岸線 さいたま新都心 徒歩17分
 
- JR埼京線 大宮 徒歩18分
掲載物件1件
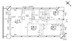
| 間取り図 | 階 | 価格 | 間取/面積 | ||
|---|---|---|---|---|---|
|   | 4階 | 1,390.0万円 | 
															3LDK
																				 75.28m2 | ||









 
											 
														



























 
														




























 
														




























 
														



















 
											




























 
														




























 
											




























 
														




























 
														




























 
														









 
											 
														 
											 
														



























 
														




























 
														











 
														





















 
											 
														



























 
											 
														



























 
														




























 
											




























 
														


























 
														




























 
														








 
											




























