築港センタービル
築年数 築45年
総階数4階建
- 築港2丁目
-
- 南海和歌山港線 和歌山港 徒歩17分
JR紀勢本線 和歌山市 徒歩25分
- 南海和歌山港線 和歌山港 徒歩17分
掲載物件1件
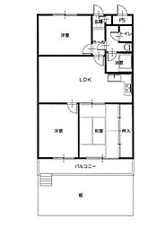
| 間取り図 | 階 | 価格 | 間取/面積 | ||
|---|---|---|---|---|---|
|
4階
|
250.0万円 |
4DK
64.9m2 |
||

















































































































