
中古戸建 神戸市長田区高取山町2丁目
築年数 築30年
総階数2階建
- 高取山町2丁目
-
- 山陽電鉄本線 板宿 徒歩21分
神戸市西神・山手線 板宿 徒歩21分
- 山陽電鉄本線 板宿 徒歩21分
掲載物件1件
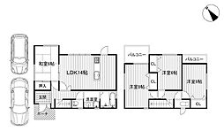
間取り図 | 階 | 価格 | 間取/面積 | ||
---|---|---|---|---|---|
![]() |
-
|
1,550.0万円 |
3LDK
84.78m2 |
||