中古戸建 西桜木町1丁目
築年数 築5年
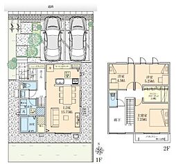
総階数2階建
- 西桜木町1丁目
-
- JR飯田線 豊川 徒歩22分
名鉄豊川線 豊川稲荷 徒歩22分
- JR飯田線 豊川 徒歩22分
掲載物件2件
| 間取り図 | 階 | 価格 | 間取/面積 | ||
|---|---|---|---|---|---|
|
-
|
3,699.0万円 |
4LDK
122.57m2 |
||
|
-
|
3,699.0万円 |
4LDK
122.57m2 |
||






















































































































































































































