
上平間 水回り設備が集約されたプランの3階建て邸宅
築年数 築22年
総階数3階建
- 上平間
-
- JR南武線 平間 徒歩7分
東急多摩川線 下丸子 徒歩19分
- JR南武線 平間 徒歩7分
掲載物件1件
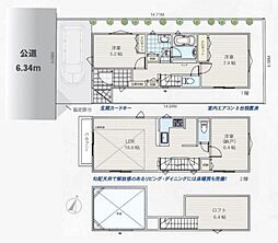
間取り図 | 階 | 価格 | 間取/面積 | ||
---|---|---|---|---|---|
![]() |
-
|
5,390.0万円 |
4LDK
89.83m2 |
||