片山アパート
築年数 築43年
総階数2階建
- 下鴨高木町
-
- 京都市営烏丸線 松ヶ崎 徒歩11分
京都市営烏丸線 北山 徒歩21分
- 京都市営烏丸線 松ヶ崎 徒歩11分
掲載物件4件
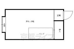
| 間取り図 | 階 | 賃料/管理費等 | 敷金/礼金 | 間取/面積 | |
|---|---|---|---|---|---|
|
2階
|
1.6万円 1,500円 |
敷1.0万円 礼1.0万円 |
1R
10.75m2 |
|
|
2階
|
1.6万円 1,500円 |
敷1.0万円 礼1.0万円 |
1R
10.75m2 |
|
|
2階
|
1.6万円 1,500円 |
敷1.0万円 礼1.0万円 |
1R
10.75m2 |
|
|
2階
|
1.6万円 1,500円 |
敷1.0万円 礼1.0万円 |
1R
10.75m2 |
|














































































































































































































































































































































































































































































































































































































































































































































































































































































































































































































































































